Culoz-Béon (01350) À Culoz, T4 à deux pas de la gare (liaison vers Genève)

Réf : PVAP10001003 217 000 €

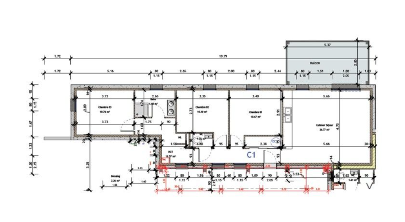
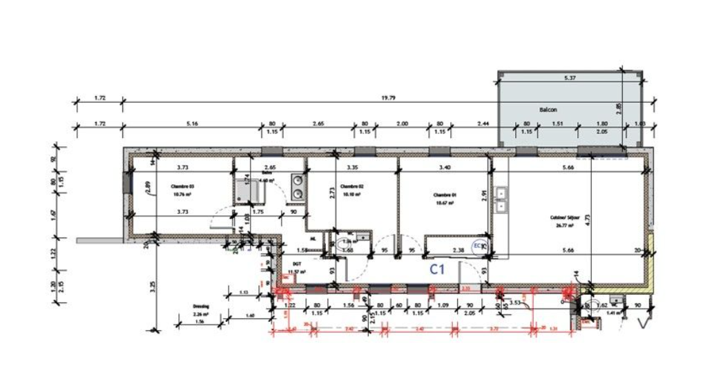
Dans une résidence sécurisée, découvrez cet appartement de type 4, au deuxieme et dernier étage d’environ 82 m² habitables, agrémenté d’une terrasse de 15m2 environ.

Vous serez séduit par :

  • Sa lumineuse pièce de vie, offrant un beau volume, ouvrant sur une terrasse exposé Est, idéal pour profiter des beaux jours.

  • Ses 3 belles chambres, une salle d’eau moderne et des toilettes indépendantes.

Prestations de qualité : menuiseries aluminium, porte blindée 4 points, VMC et chauffage individuels.

L’appartement est disponible avec sols, peintures et cuisine (hors électroménager).

Informations copropriété :
La présente annonce concerne 1 lot situé dans une copropriété de 19 lots au total, sans procédure en cours (art. L 721-1 du CCH).
Montant moyen mensuel des charges : 25 €/mois (soit 300 €/an).
Honoraires d’agence à la charge du vendeur.

Contactez-nous pour organiser une visite et saisir cette opportunité unique à proximité immédiate de Genève.

TRAD_SIROCCO_Caracteristique Valeurs
Code postal 01350
Surface habitable (m²) 82 m²
Nombre de chambre(s) 2
Nombre de pièces 3
TRAD_SIROCCO_Caracteristique Valeurs
Terrasse OUI
Exposition Est
TRAD_SIROCCO_Caracteristique Valeurs
Copropriété NON
TRAD_SIROCCO_Caracteristique Valeurs
Prix de vente 217 000 €
Les honoraires d'agence seront intégralement à la charge du vendeur  
DPE GES
DPE non concerné
  • Commerces et santé
  • Loisirs
  • Ecoles
  • Transports
  • Pratique

Nos outils

Imprimer
Intéressé(e) par Ce bien ?

* Champ obligatoire

contacter l'agent

Les informations recueillies sur ce formulaire sont enregistrées dans un fichier informatisé par La Boite Immo agissant comme Sous-traitant du traitement pour la gestion de la clientèle/prospects de l'Agence / du Réseau qui reste Responsable du Traitement de vos Données personnelles. La base légale du traitement repose sur l'intérêt légitime de l'Agence / du Réseau. Elles sont conservées jusqu'à demande de suppression et sont destinées à l'Agence / au Réseau. Conformément à la loi « informatique et libertés », vous disposez des droits d’accès, de rectification, d’effacement, d’opposition, de limitation et de portabilité de vos données. Vous pouvez retirer votre consentement à tout moment en contactant directement l’Agence / Le Réseau. Consultez le site https://cnil.fr/fr pour plus d’informations sur vos droits. Si vous estimez, après avoir contacté l'Agence / le Réseau, que vos droits « Informatique et Libertés » ne sont pas respectés, vous pouvez adresser une réclamation à la CNIL. Nous vous informons de l’existence de la liste d'opposition au démarchage téléphonique « Bloctel », sur laquelle vous pouvez vous inscrire ici : https://www.bloctel.gouv.fr Dans le cadre de la protection des Données personnelles, nous vous invitons à ne pas inscrire de Données sensibles dans le champ de saisie libre.
Ce site est protégé par reCAPTCHA, les Politiques de Confidentialité et les Conditions d'Utilisation de Google s'appliquent.

Ces biens peuvent aussi vous intéresser
Nouveauté
Mandelieu-la-Napoule (06210)

Superbe 2 pièces avec vue mer - terrasse - parking