Le Cannet (06110) Appartement T2 - 48 m2 - Le Cannet

Réf : DJVAP40000487 Nous consulter

Idéalement situé au Cannet, ce superbe appartement T2 de 48m2 se trouve au rez-de-chaussée d'une résidence de standing, offrant une localisation privilégiée à proximité de toutes les commodités.

Vous bénéficierez d'un accès facile aux commerces, restaurants, écoles et transports en commun, tout en profitant d'un environnement calme et paisible.

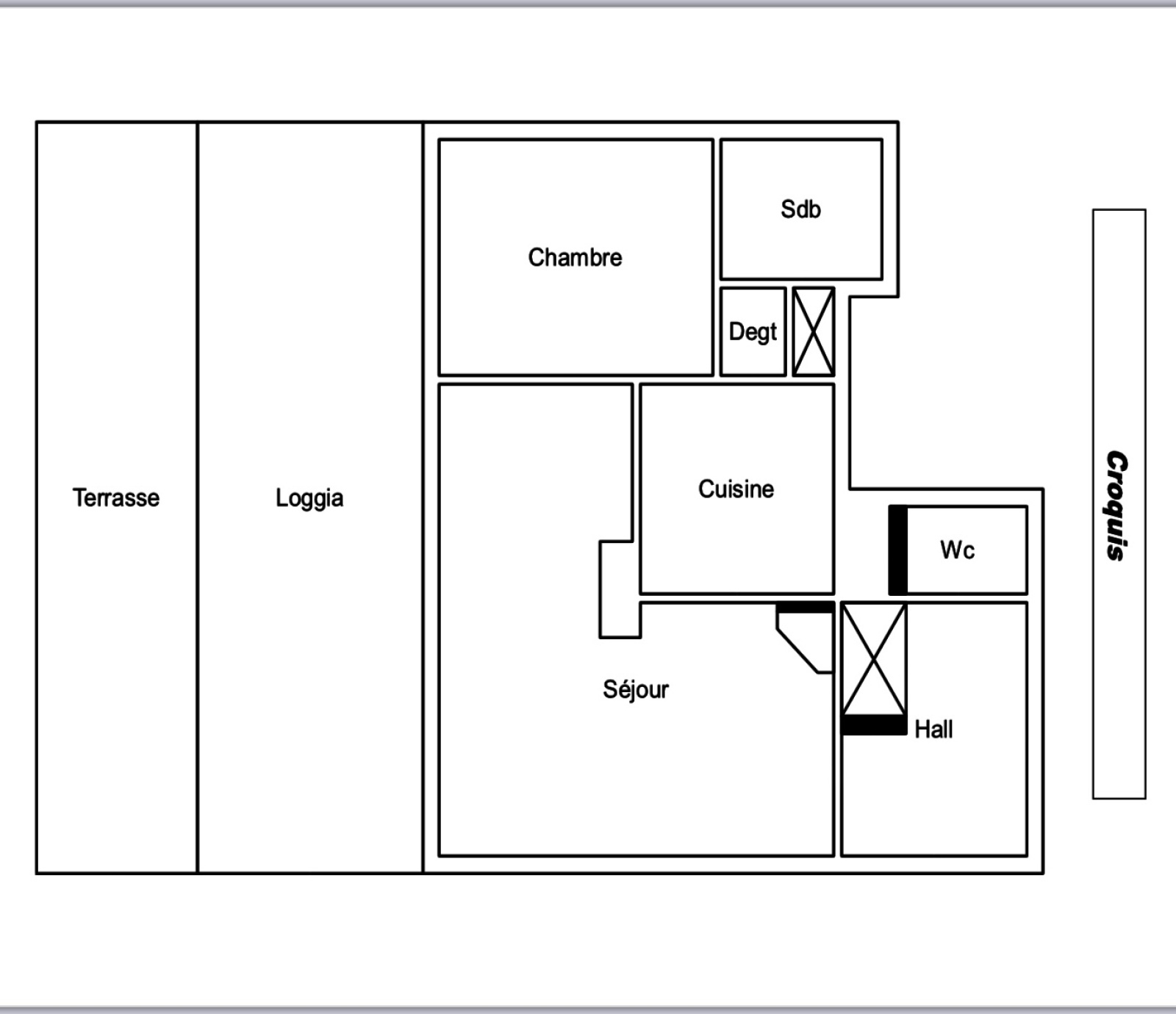
L'appartement offre une loggia fermée plein Sud de 20m2, qui constitue un véritable espace de détente et de convivialité, idéal pour profiter des belles journées ensoleillées.

L'appartement se compose d'une entrée avec un grand placard, d'une pièce à vivre de 22m2 ouvrant sur une loggia fermée, d'une cuisine ouverte entièrement aménagée, d'une chambre, d'une salle de bain et d'un WC invité.

De plus, une terrasse de 15m2 vous permettra de savourer des moments de tranquillité tout en admirant la vue sur les environs.

Le Cannet est réputé pour son cadre de vie agréable, ses rues pittoresques et son ambiance chaleureuse. Vous pourrez vous promener dans le centre historique, découvrir ses galeries d'art, ou encore profiter des nombreux parcs et espaces verts à proximité.

En outre, grâce aux baies vitrées, au double vitrage et aux volets roulants électriques, vous bénéficierez d'un confort optimal et d'une luminosité naturelle dans toutes les pièces de l'appartement.

Ne manquez pas cette occasion de vous installer dans ce quartier recherché du Cannet, où vous pourrez profiter pleinement de la vie urbaine tout en étant proche de la nature et de la sérénité.

Contactez-nous dès maintenant pour organiser une visite de cet appartement en parfait état, situé dans une résidence récemment ravalée, offrant des façades fraîchement remises à neuf. Les parties communes sont impeccables et témoignent d'un entretien de qualité.


TRAD_SIROCCO_Caracteristique Valeurs
Code postal 06110
Surface habitable (m²) 47,70 m²
Surface loi Carrez (m²) 47,70 m²
Nombre de chambre(s) 1
Nombre de pièces 2
Ascenseur OUI
Vue Dégagée
TRAD_SIROCCO_Caracteristique Valeurs
Nb de salle de bains 1
Cuisine Américaine
Type de cuisine Equipée
Mode de chauffage Gaz
Type de chauffage Radiateur
Format de chauffage Collectif
Interphone OUI
Visiophone NON
Balcon NON
Loggia OUI
Terrasse OUI
Murs mitoyens 1
Cave OUI
Surface cave (m²) 5
Exposition Sud
Année de construction 1985
TRAD_SIROCCO_Caracteristique Valeurs
Copropriété OUI
nombre de lots 80
Quote Part annuelle des charges 1 727 €
plan de sauvegarde NON
TRAD_SIROCCO_Caracteristique Valeurs
Taxe foncière annuelle 833 €
DPE GES
DPE ANCIENNE VERSION
  • Commerces et santé
  • Loisirs
  • Ecoles
  • Transports
  • Pratique

Nos outils

Imprimer
Ces biens peuvent aussi vous intéresser
Vendu
Nice (06000)

Pour un investissement locatif, appartement à vendre occupé, T2 47...

Vendu
Nice (06000)

Appartement T2 45 m2, Nice quartier bas de Cimiez-Acropolis